Quick Start Guide

Residential Lumber & Building Material Estimating Software

Makes Quick Work of Itemized Material Takeoffs 

 

Esti-Mate is a simple user friendly program for building professionals who don't have time to learn new procedures or complicated hardware. Designed by and for pro oriented LBM dealers, estimators, home builders, home improvement and remodeling contractors.

Esti-Mate automatically converts takeoff dimensions from blueprints to an itemized list of waste factored delivery order quantities. The program does the most time consuming and normally not exactly error free part of handwritten takeoffs. Lists all lumber and building material items that require estimating formulas, math calculations, math conversions, and adding waste factors. Windows PC program with pop up menu's for fast point and click selection of material types and sizes. Minimal amount of information required from plans for entry to program screen fields. 

With Esti-Mate you are able to printout a worksheet of dimensions required for the house type you are working with, and when completed enter these takeoff dimensions to Esti-Mate program screen fields by using your keyboard. We found the best available software and hardware and configured our program to be interface setup ready for use with these products that allows the end user to navigate through program screens and enter the takeoff dimensions directly from your blueprints to the program screen fields. Software works on PC compatible computers with Windows ® 3.1 or greater, allowing flexibility for use at your office, at home, or in the field on laptop computers.

With Esti-Mate complex stick built roofs require only two length entries per easily managed roof section. First year FREE program updates and toll free telephone support provided for installation and program use. PC terminal interface setup available for most POS systems, to transfer the completed Esti-Mate material list directly to your POS quote processing, either local or remote using a modem. This allows you the flexibility to add any item to the takeoff that is in your computer system database, and special order items that would need to be typed in and priced. Then print the completed material estimate with current prices for any quote.

Discount pricing available for members of (NLBMDA), National Lumber and Building Material Dealers Association, and (SBMA), Southern Building Material Association. 

Esti-Mate Inc.

top of page

Quick Start Guide
for Estimating with Esti-Mate™



  From the main menu select each menu item and press the F1 function key for a review of the help available.

  The Esti-Mate demo will enable you to print seven take-off estimates for evaluation.

  All estimates created during your review will remain on your computer ready for use when you purchase Esti-Mate software.

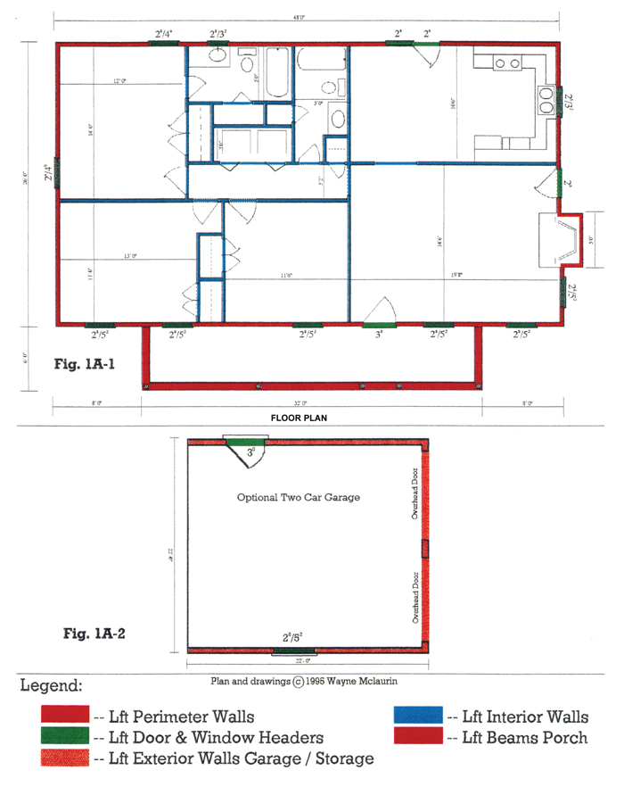
  Please take the time to review the enclosed tutorial plan and worksheets with the attached two-car garage. The worksheet of the tutorial plan includes all footage entries required to produce a printout of all lumber and building supply material items that require estimating formulas including waste factors.

  The Esti-Mate demo disk is shipped with tutorial plan on file for reviewing the data entry screens. To review the tutorial plan from the main menu, select estimate menu, then select edit existing, when you see the plan checklist, click on OK at bottom right of screen. By selecting next screen button at the bottom left corner, you can review screens 1 through 11 of the completed tutorial plan.

  To change any of the material types using the mouse, click the down arrow and the pop up list will appear so that you can change the current material type selection.

  If you need help anywhere in Esti-Mate press the F1 function key for more detailed information.

  Esti-Mate has a built in calculator that you can use during numeric input. To bring up the calculator, press the F2 function key or use the right mouse button on the numeric data field. The calculator total can be returned directly into the numeric entry field using the transfer result button.

  After reviewing is finished select exit. If modifications have been made that you want to keep, select save. Otherwise select no save and you will return to the menu. If no modifications to the plan were made, select yes at the pop up selection to return to the menu.

  You are now ready to start providing your customers with better service, faster and more accurate takeoffs, while allowing you more time and opportunity to increase your customer base and sales.

top of page

Worksheets...

Tutorial Customer

03-09-2001 Esti-Mate Worksheet Pages 1-3

Description:  1S Crawl with Att Garage, Porch(s)

 

Date of Plan: 08-04-2001
Plan Number: 1248 w-optional two car garage
Customer Name: Tutorial Plan
Address: 1234 Anywhere Street
City, State, Zip: Fayetteville, NC 28305

 

Preliminary Roof and Gable Measurements

Square Footage of Heated Area First Floor: 1248
Square Footage of all Porches:  192
Square Footage of Garage: 484
Pitch of Roof in Inches Per Foot: 6
Total Linear Footage of Eaves: 144
Total Linear Footage of Rakes with Fascia: 108
Roof Overhang in Inches: 12
Total Number of Gables from all Elevations: 2
Widths:  32    32

 

Measurements Only

Left of First Floor Perimeter Walls (Heated Area): 148
Number of Outside Corner (Foundation Plan): 5
Length of House (Heated Area): 48
Total Length of House (Including Garage/Storage): 70
Linear Feet of Major Girders - 8 Ft. Length
Linear Feet of Major Girders - 10 Ft. Length
Linear Feet of Major Girders - 12 Ft. Length
Linear Feet of Major Girders - 14 Ft. Length 96
Linear Feet of Major Girders - 16 Ft. Length
Linear Feet of Major Girders - 8 Ft. Length
Linear Feet of Major Girders - 10 Ft. Length
Linear Feet of Major Girders - 12 Ft. Length
Linear Feet of Major Girders - 14 Ft. Length
Linear Feet of Major Girders - 16 Ft. Length
Linear Feet of Drop Girder - 8 Ft. Length N/A
Linear Feet of Drop Girder - 10 Ft. Length
Linear Feet of Drop Girder - 12 Ft. Length
Linear Feet of Drop Girder - 14 Ft. Length
Linear Feet of Drop Girder - 16 Ft. Length
Linear Feet of Sill - 8 Ft. Length 32
Linear Feet of Sill - 10 Ft. Length 20
Linear Feet of Sill - 12 Ft. Length
Linear Feet of Sill - 14 Ft. Length 96
Linear Feet of Sill - 16 Ft. Length
Linear Feet of Interior Walls (First Floor) **
Square Feet of Heated Area (First Floor) *
Left of Bay Areas Floor Joists - 8 Ft. Length: 96
Left of Bay Areas Floor Joists - 10 Ft. Length: 48
Left of Bay Areas Floor Joists - 12 Ft. Length:
Left of Bay Areas Floor Joists - 14 Ft. Length:
Left of Bay Areas Floor Joists - 16 Ft. Length:
Square Footage for Strip Oak Flooring:
Linear Feet of Exterior Walls (Garage/Storage): 66
Linear Feet of Interior Walls (Garage/Storage):
Square Footage of Garage/ Storage: *
Linear Feet of Beams (Carport/Porch): 44
Square Footage of Carport/Porch: *
Linear Feet of Door & Window Headers: **
Linear Feet of Fascia: **
Square Footage of Roof Area (Hip Roof Add 5%): **
Square Footage of 1st Floor Exterior Wall Siding: **
Square Feet of Gables: **
* = Not required if Preliminary measurements are completed.
** = Calculated value if preliminary measurements are completed.

top of page

Esti-Mate
QUICK START GUIDE FOR ESTIMATING RESIDENTIAL
STICK BUILT ROOF SECTIONS


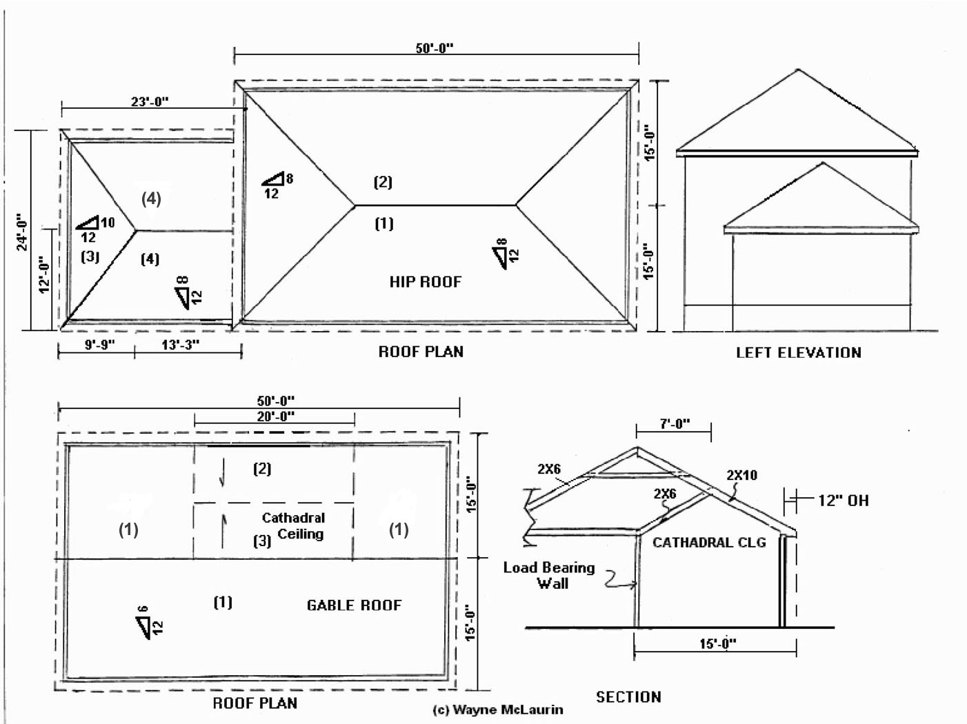
Esti-Mate has developed a method for quickly entering information to complete a stick built roof take-off. The first screen is for entering the linear footage for bay areas of each size and length of ceiling joist required on the plan. The second screen is for entering the rafter runs of each section of the roof type, for example. . . a simple gable roof with one span is made up of two (2) sections of rafter runs and would be entered as two (2) sections. The break-down of the roof take-off into sections as described here facilitates multiple pitches with multiple combinations of section types. On Gable sections only, that have the same rafter size, pitch, and Left of Rafter Run for both sections can be entered as (1) section, by entering the total length of rafter run section including overhangs for both sections in the Left of Section field. 


GABLE ROOF SECTION:
For each section of the roof, click on the Add New Section button. On section type select the matching section from your plan. Each section is for a single run of rafters, not the complete span. To determine the Left of Rafter Run, measure the exact horizontal length from ridge to the outer edge of overhang. To determine the Left of Section, measure the total Length of rafter run section including overhangs. When entering values you may use feet-inches or any fractional value. Example; 12-6 or 12.5 would both be 12 feet 6 inches. To enter feet-inches make sure that you place a hyphen or minus sign between the two values or unpredictable results may occur.

HIP ROOF SECTION:
Hip roofs, are always entered as two (2) sections, with each section consisting of two hip rafters. To determine the Left of Rafter Run, measure the exact horizontal length from ridge to outer edge of overhang. To determine the Left of Section, measure the total length of rafter run section including overhangs and enter in Left of section field. Hip w/Valley selection, and Gable w/ Valley selection are also always entered as two (2) sections.  Click to view the illustration.

ROOF ILLUSTRATIONS:
P= PITCH
RS= RAFTER SIZE
R= LEFT OF RAFTER RUN
LR= LENGTH OF RAFTER RUN SECTION

HIP ROOF:
SECTION (1) P= 8 RS= 2X6 R=15-0 LR= 50-0
SECTION (2) P= 8 RS= 2X6 R=15-0 LR= 50-0
SECTION (3) P=10 RS= 2X6 R= 9-9 LR= 24-0
GABLE SECTION (4) P= 8 RS= 2X6 R=12-0 LR=26-6

GABLE ROOF:
SECTION (1) P= 6 RS= 2X6 R=15-0 LR= 80-0
SECTION (2) P= 6 RS= 2X10 R=15-0 LR= 20-0
SECTION (3) P= 6 RS= 2X6 R= 7-0 LR= 20-0

top of page

 

Ziatek ® Crystal Digitizing Software

Elegant - Powerful - Simple - Fast!. . . and affordable!

 

  Digitize complex areas and lengths from blueprints in seconds with incredible accuracy, speed and ease! Takeoff productivity will increase several hundred percent over manual methods.

  Transfer quantities into any Windows ™ estimating program, e.g. Excel ™ , with a single click of

the digitizing pen or cursor. Ziatek’s interfacing technology is the most powerful in the industry . . . and the simplest to use!

  Ziatek ® Crystal works with any scale in both metric and imperial units.  Unknown scales

are instantly determined with the autoscale feature.

  The convenient menu pad frees the user from the mouse and keyboard for many tasks

including navigation through other programs!

 

Price:  $695

 

top of page

 
Optional PC interface kit available to input values directly into spreadsheet or estimating programs.

INTERFACE KIT INCLUDES:  

• SM2 Connect interface software for Windows® (CD only)

• 10 foot (3 meter) interface cable with 9-pin connector

• Clearly-written installation and operation guide

 

SYSTEM REQUIREMENTS:

• IBM-compatible computer

• Windows® 3.0 or higher, Windows® 95, 98 or 2000

• One serial port

• One CD-ROM

 

MEMORY REQUIREMENTS:

• 170K RAM for installation

• 2K for operation of SM2 Connect terminate and Stay Resident program (TSR)

 

Fast take-offs

improve productivity

 

Accuracy helps to ensure profitability… proper use provides error-free linear, area and volume take-offs

 

Versatility of multi-scale

capabilities…91 built-in scales and 8 "custom" scales cover all practical print and plan applications

 

PC interface capability

means valuable entry time is reduced, key-strokes are minimized and transposition errors are eliminated

SCALE MASTER®  II

Advanced Digital Plan Measure

with Optional PC Interface

 • Contractors • Estimators • Engineers • Architects •  Landscapers • Pipeline Builders • Excavators • Concrete Contractors • Plumbers • HVAC Contractors • Fencing Specialists • Telecommunications & Cable System Contractors  • Pavers • Electrical Contractors • And Many More!

Scale Master II makes it easy for you to do linear, area and volume take-offs with speed, accuracy and confidence. Whether you’re responsible for estimating, bidding or planning, Scale Master II offers the ultimate in take-off capabilities. Its optional PC interface kit makes it simple to input any value directly into spreadsheet or estimating programs using Windows® v3.0 or higher or Windows® 95, 98 or 2000 for even greater time savings and convenience.

 

  91 built-in scales. 50 Imperial (feet-inch) units and 41 Metric, for maximum versatility in architectural, engineering and civil/map scaling.

  Constant (+K) key allows you to add (or subtract) a constant value to the distance measured. Great for "drops" and add-ons.
  Eight "custom" scales. Four each for Imperial and Metric units, lets you "roll" or define any scale, even from plans that have been reduced or enlarged or are unscaled.  And, each can be permanently stored for later use.   Wide range of dimensional units. Use best-suited units to fit your work: Decimal feet, feet-inches, decimal inches, yards, miles, nautical miles, acres. Also millimeters, meters, kilometers, hectares — most available in square and cubic formats.
  Exclusive!  Dedicated length and width keys. Allows you to roll, store and recall L, W (and H) values, and easily find rectangular areas and volumes, instantly.   Imperial/Metric mode switch
  Lock switch. Locks in the mode and scale so you cannot inadvertently change them while rolling. Subtract key.  Deducting rolled lengths is now intuitive and easy.

 

  Auto Count feature automatically "counts" how many times your pre-set distance has been rolled. Great for automatic stud counts, columns, fence posts, outlets, fixtures, or any other regularly spaced items.   Accumulating (M+) memory allows you easy totaling of dimensions or counts — perfect for multi-page plans.
  Count while rolling. Push-button counter lets you count items as you roll (i.e., studs, piers, outlets, etc.).

top of page

QuikRuler™

The Affordable Measuring Workstation for Architects, Construction Estimators, Engineers & Surveyors

QuikRuler is an exciting new tool that quickly and accurately automates blueprint takeoff and drawing measurement processes.  It includes everything you need to get started: a GTCO Roll-Updigitizer, pointing device, measuring menu and LCD display with a sophisticated, yet easy to use built-in measuring program. Best of all, the QuikRuler digitizer is compatible with all leading estimating software, so your investment is protected when you choose to upgrade to the even higher performance of a computerized estimating system. For more information, or to locate the dealer nearest you, call 1-800-344-4723.

top of page

Easy to Use ----- Absolutely No Computer Experience Required!

QuikRuler requires no special training or computer experience... it only takes minutes to start measuring.

For example, to measure an area, simply select AREA from the menu then trace or touch points along the perimeter of the area with the pointing device. The resulting measurement will appear (in English or metric units) on the LCD display.

QuikRuler also can be connected to a PC through the serial port to automatically input numerical data into any software program, including Lotus 1-2-3 ® and Microsoft Excel®

.

Win More Bids!

QuikRuler is proven to deliver faster, more accurate takeoffs and measurements, boosting performance up to 3 times!  It includes all functions necessary to measure lengths, as well as irregular areas in any scale or unit of measurement. In addition, QuikRuler performs standard calculator functions and can count items on blueprints or drawings with ease. More bids means more jobs...Greater accuracy means bigger profits!

QuikRuler

M E A S U R I N G   WO R K S TAT I O N

Large, Easy-to-Read Display
Easy-to-Use Measuring Menu
Choice of Pointing Devices

7125 Riverwood Drive Columbia, Maryland 21046
Telephone 410.381.6688 Fax 410.290.9065

http://www.gtco.com

top of page

MEASUREMENT AREA FOOTPRINT WEIGHT AVG. SHIP WT.

Model 2024-QR 20" x 24" 28" x 29" 5 lbs 14 lbs
(508 mm x 610 mm) (711 mm x 737 mm) (2.3 kg) (6.4 kg)

Model 3036-QR 30" x 36" 35" x 44" 7 lbs 18 lbs
(762 mm x 914 mm) (889 mm x 1118 mm) (3.2 kg) (8.2 kg)

Model 3648-QR 36" x 48" 41" x 56" 8.25 lbs 22 lbs
(914 mm x 1219 mm) (1041 mm x 1422 mm) (3.8 kg) (10.5 kg)

 

S T A N D A R D          F E A T U R E S

Measuring Functions
Area, Length Segment, Length Continuous, Count, Perimeter, Units, Scale, Auto Scale, Count Scale

Calculator Functions
Add, Subtract, Divide, Multiply

Units of Measure
Inches, Feet, Yards, Miles, Millimeters, Centimeters, Meters, Kilometers, No Units

Scale Any Scale

 

S T A N D A R D          S P E C I F I C A T I O N S

Thickness
0.078" (3.2 mm)

Roll Diameter 8" (203 mm) recommended

Resolution 0.0004" (2540 lpi) / 0.010 mm (100 lpmm)

Hardware Interface RS-232 Serial Interface (not required)

Lock Height Digitize through plan books up to 0.5" (12.7 mm) thick. Simply slide digitizer between plans for thicker plan books.

Power Supply 9V at 500 mA

Operating Temp. 40°F to 115°F (5°C to 46°C)

Storage Temp. 0°F to 150°F (-18°C to 66°C)

Warranty Two Year Limited US Warranty, Free Technical Support

 

O P T I O N A L          E Q U I P M E N T      &     A C C E S S O R I E S

The QuikRuler LCD Display module also can be used with GTCO’s industry standard Super L II™ and ultra-high precision AccuTab rigid digitizers.

Pointing Devices 4 Button MaxVu Cursor, 16 Button MaxVu Cursor

Accessories Plan Holders, Deluxe Travel Case

Languages English, French, German, Japanese, and Spanish

©Copyright 1997, GTCO Corporation. QuikRuler, Roll-Up, Super L II, and AccuTab are trademarks or registered trademarks of GTCO Corporation. All other marks are owned by their respective companies. Specifications are subject to change without notice.

Uses
Perfect for construction estimators, architects, engineers, surveyors, and other professionals who require fast, accurate measurements from drawings.

Affordable
The QuikRuler Measuring Workstation delivers superior performance at a price below that of conventional large format digitizers and doesn’t require a computer to operate.

Portable
Light weight and only 1/8" (3.2mm) thick, QuikRuler is easily rolled for storage or transport to a task sight.

Standard Equipment
Digitizer with Controller
Stylus with Tip and Side Switch Drivers for DOS® and Windows®
9 to 25 Pin Adaptor
Power Supply
LCD Display featuring
    16 Characters x 2 lines
    (2.25" x 0.75", 57mm x 19mm)
Interface Module Cable
Measuring Menu
Shipping/Storage Tube with Insert
User’s Manual

GTCO was awarded a patent for the invention of the world’s first absolute-position electromagnetic digitizing technology over 20 years ago.  Since then, GTCO has produced, installed and now supports more than 100,000 precision digitizer systems in 50 countries around the world.

top of page